Stedman Mill Installation
Stedman Mill Installation
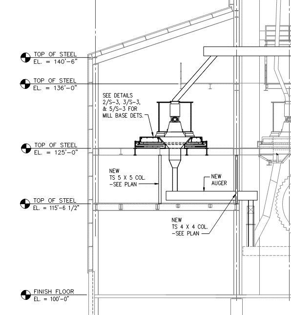
DR Anderson installed a refurbished Stedman mill in an existing operating plant for a long time client. The existing deck was modified and reinforced for the new loads added by the mill and supporting base. Once structural members were in place, a concrete inertia base was placed in two parts to isolate vibration from the mill. The 25,000lb mill was hoisted to the upper level and assembled in place. Due to the mill’s location in the plant, DRA’s millwrights rigged and set mill sections into place by hand using chain falls. Once the mill was installed screw conveyors and dust control systems were installed and tied into the existing plant processing system.






